TermoPool DOO
LJubiše Miodragovica 11 N
11160 Beograd
PIB: 108790604
MB: 21068055
LJubiše Miodragovića 11 N , 11160 Beograd
| Sifra | Naziv | sifra proizvodjaca | cena: |
| 0009587 | Speck Smart + Vogue 58 m3 | 2321100000+2323200000 | 367.120,00 |
| 009588 | Kuciste,cevi i fiting za turbo jet Speck Vogue | 2321100000 | 45.159,00 |
| 009977 | Finalni set Speck Vogue | 2323200000 | 321.968,00 |
Informacije o proizvodu:
"BADU®JET Vave komplet za završnu montažu 400 V"
Ova moćna jedinica za plivanje ima sve atrakcije potrebne za vaš bazen iz snova: podvodnu masažu, talase i beskrajno plivanje bez skretanja.
Ugrađena LED svetla su dostupna u više boja ili u beloj, vidljivo transformišući večernje sate na bazenu.
Polje primene
Za ugradnju u zidove svih modela bazena, kao deo za razgovor, za fitnes trening, kao kupka sa talasima ili vazdušnim mehurićima, za podvodne masaže (konsultujte lekara), za beskrajno plivanje bez okretanja, čak i u najmanjem bazenu.
Dizajn:
Snažna mlazna pumpa je povezana preko usisnih i potisnih vodova, uvlači vodu i pumpa je nazad u bazen u snažnom mlazu, čija se jačina može regulisati preko mlaznice, kroz kućište mlaza koje je ugrađeno u zid bazena. . Brzina usisa se održava niskom zahvaljujući velikom broju otvora svuda oko kućišta mlaznice.
Vijugav i homogen dizajn njegovog poklopca, koji je napravljen od visokokvalitetnog nerđajućeg čelika, privlači pažnju. Ugrađena LED lampa, kojom se može upravljati iz bazena, kao i pneumatski prekidač i regulacija sa mehurićima doprinose opuštenoj atmosferi.

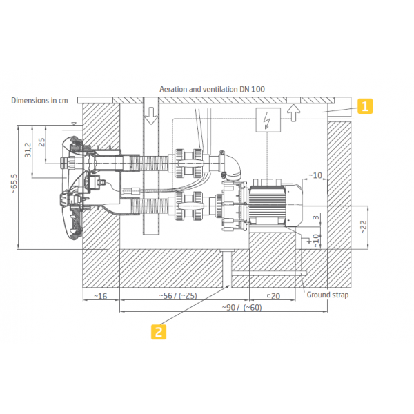
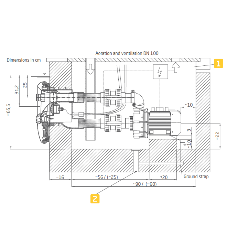
Performanse motora (P2) : 2,60kw
Oprema za bazen: Jedinice za plivanje
Glavno kućište: ABS, ABS
Kućište mlaznice : ABS, ABS
Maska: ABS / nerđajući celik
Usisni/pritisni vod: PVC
Protok pumpe : 58 m³/h
Molimo da pre kupovine proizvoda proverite validnost cena. Postoji mogućnost odstupanja navedene od stvarne cene.
SVE CENE SU SA PDV-om